Suprafata construita (la sol): 106mpSuprafata desfasurata (parter+mansarda): 206mpSuprafata utila (fara ziduri, balcoane): 182mpSuprafata terase si balcoane: 21mp
Casa FinSteel 01 vedere fațadă
Vedere superioară complex de case
Plan etaj
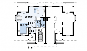
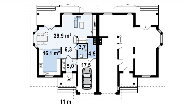
Plan parter
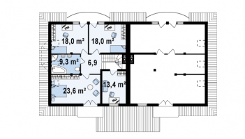
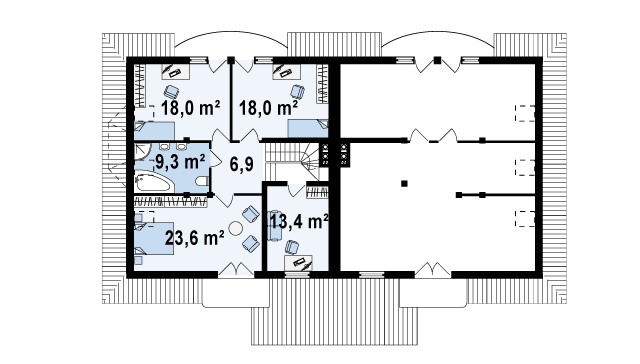
Plan pod