Casa FinSteel 06

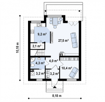
Suprafata construita (la sol): 81mp
Suprafata desfasurata (parter+mansarda): 167mp
Suprafata utila (fara ziduri, balcoane): 131mp
Suprafata terase si balcoane: 17mp

Galerie fotografii casa finsteel 06