Home
Despre Noi
Constructii
Case pe structura metalica
Hale metalice
Grajduri metalice
Alte constructii
Productie
Profile zincate
Tabla acoperis
Grinzi metalice
Confectii metalice
Servicii
Acoperisuri / Mansardari
Prelucrari metalice
Portofoliu
Contact
Javascript is required to use this website translator.
Home
Despre Noi
Constructii
Case pe structura metalica
Hale metalice
Grajduri metalice
Alte constructii
Productie
Profile zincate
Tabla acoperis
Grinzi metalice
Confectii metalice
Servicii
Acoperisuri / Mansardari
Prelucrari metalice
Portofoliu
Contact
Home
»
Constructii
»
Case pe structura metalica
»
Casa FinSteel 13
Casa FinSteel 13
Galerie fotografii casa finsteel 13
Casa FinSteel 13 vedere fațadă
Casa FinSteel 13 vedere fațadă
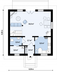
Plan parter
Plan mansarda
Planseta